[ Wed, Feb 25th ]: The Cool Down
[ Wed, Feb 25th ]: The Raw Story
[ Wed, Feb 25th ]: 13abc
[ Wed, Feb 25th ]: wjla
[ Wed, Feb 25th ]: Fox 11 News
[ Wed, Feb 25th ]: Seeking Alpha
[ Wed, Feb 25th ]: MarketWatch
[ Wed, Feb 25th ]: The Independent
[ Wed, Feb 25th ]: Daily Camera
[ Wed, Feb 25th ]: FOX 5 Atlanta
[ Wed, Feb 25th ]: WGME
[ Wed, Feb 25th ]: Fortune
[ Wed, Feb 25th ]: Daily Mail
[ Wed, Feb 25th ]: Cleveland.com
[ Wed, Feb 25th ]: Birmingham Mail
[ Wed, Feb 25th ]: WISH-TV
[ Wed, Feb 25th ]: 7NEWS
[ Wed, Feb 25th ]: The Center Square
[ Wed, Feb 25th ]: Billboard
[ Wed, Feb 25th ]: CBS News
[ Wed, Feb 25th ]: Daily Record
[ Wed, Feb 25th ]: Local 12 WKRC Cincinnati
[ Wed, Feb 25th ]: WSB Radio
[ Wed, Feb 25th ]: KGNS-TV
[ Wed, Feb 25th ]: WTOP News
[ Wed, Feb 25th ]: The West Australian
[ Wed, Feb 25th ]: NBC Los Angeles
[ Wed, Feb 25th ]: The Clarion-Ledger
[ Tue, Feb 24th ]: CNN
[ Tue, Feb 24th ]: Daily Mail
[ Tue, Feb 24th ]: Euronews
[ Tue, Feb 24th ]: BBC
[ Tue, Feb 24th ]: Daily Record
[ Tue, Feb 24th ]: NBC News
[ Tue, Feb 24th ]: The Courier-Journal
[ Tue, Feb 24th ]: People
[ Tue, Feb 24th ]: 7NEWS
[ Tue, Feb 24th ]: Fortune
[ Tue, Feb 24th ]: Detroit Free Press
[ Tue, Feb 24th ]: Irish Examiner
[ Tue, Feb 24th ]: Fox News
[ Tue, Feb 24th ]: HousingWire
[ Tue, Feb 24th ]: Variety
[ Tue, Feb 24th ]: Sporting News
[ Tue, Feb 24th ]: Oregonian
[ Tue, Feb 24th ]: Los Angeles Times
[ Tue, Feb 24th ]: WTOP News
[ Tue, Feb 24th ]: The Boston Globe
Oakhaven Housing Development Approved Despite Noise Concerns
Locale: UNITED KINGDOM

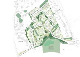
Oakhaven, February 24th, 2026 - A controversial housing development promising 157 new homes near the heavily trafficked Oakhaven rail corridor has been given the green light by the local council, despite sustained objections regarding potential noise pollution. The decision, reached late yesterday, highlights the ongoing tension between regional growth targets and the need to protect the quality of life for residents.
The development, initially proposed at 200 units, underwent revisions following a robust feedback process involving local citizens and independent railway noise specialists. The original plan drew significant criticism, with residents voicing fears that the constant train noise would render the new homes uninhabitable and severely impact their well-being. Railway experts corroborated these concerns, pointing to predicted decibel levels exceeding acceptable thresholds for residential areas, particularly during peak hours.
"We weren't simply against development," explained Margaret Bellwether, spokesperson for the Oakhaven Residents' Alliance. "We understand the need for housing, but this location felt fundamentally flawed. The railway line is incredibly busy - freight, passenger, high-speed... it's a constant stream of traffic. Reducing the number of homes to 157 is a small concession, but doesn't address the core issue of noise impacting the health and happiness of those who might live there."
The council, however, maintains that the revised plans, coupled with legally binding mitigation measures, offer a viable solution. These measures include mandatory soundproofing throughout all 157 homes, the installation of high-performance double-glazed windows, and the construction of a strategically placed, noise-reducing earth berm along the railway embankment. Furthermore, developers have pledged to incorporate noise-absorbing materials into the building's facades and landscaping.
"We took the concerns of residents very seriously," stated Councilor Alistair Finch, chair of the planning committee. "The railway noise risk assessment was thorough, and we've ensured the developers have committed to implementing all recommended mitigations. While we acknowledge noise will be present, we believe these measures will reduce it to acceptable levels. This development will bring much-needed housing to Oakhaven, as well as substantial economic benefits."
The economic argument is a key component of the council's rationale. The development is projected to create approximately 250 construction jobs over the next 18 months and a further 50 permanent positions within the local economy upon completion. Increased local spending due to the new residents is also anticipated, providing a boost to Oakhaven's businesses.
However, critics remain skeptical about the effectiveness of the mitigation strategies. Concerns center around the long-term durability of the soundproofing materials, the potential for noise to seep through ventilation systems, and the psychological impact of constant, even dampened, train noise. Some residents are exploring legal avenues to challenge the decision, arguing that the council has not adequately prioritized their right to a peaceful living environment.
The Oakhaven case isn't isolated. Across the country, similar conflicts are erupting as cities grapple with housing shortages and the need to utilize available land, even if it's located near infrastructure like railways, airports, and major highways. Experts predict a growing demand for 'noise-resilient' housing - homes specifically designed and built to minimize the impact of external sound sources. This could involve innovative building materials, advanced sound dampening technologies, and even the integration of 'white noise' systems to mask intrusive sounds.
Looking ahead, the success of the Oakhaven development will likely serve as a case study for future projects. Ongoing monitoring of noise levels within the completed homes will be crucial, and the council has committed to a post-occupancy review to assess the effectiveness of the mitigation measures. The data collected could inform future planning decisions and help strike a more balanced approach to development, one that prioritizes both economic growth and the well-being of local communities. The developers have also agreed to a community liaison role, where they will be available to address any concerns residents may have after moving in.
Read the Full BBC Article at:
https://www.aol.com/news/homes-planned-near-busy-railway-114413757.html
[ Mon, Feb 23rd ]: WMUR
[ Thu, Feb 19th ]: BBC
[ Sun, Feb 15th ]: CultureMap San Antonio
[ Thu, Feb 12th ]: BBC
[ Mon, Feb 09th ]: TheSentinel
[ Sun, Feb 08th ]: Daily Record
[ Sun, Feb 08th ]: Manchester Evening News
[ Fri, Feb 06th ]: BBC
[ Wed, Feb 04th ]: TheSentinel
[ Mon, Feb 02nd ]: San Francisco Chronicle
[ Sun, Feb 01st ]: TheSentinel
[ Sun, Feb 01st ]: Daily Record